トップページ >> 機材レンタル・リース
タワークレーン
豊富な実績と、一貫した施工体制
弊社ではタワークレーン本体のリースだけにとどまらず、
基礎工事の施工・アンカーセットの施工・壁つなぎ材の設計・製作・施工・タワークレーン本体の組立・解体の施工計画等、建設現場に於いて一貫した施工体制を持っております。
そうした数多い工事実績を持っている 私達スエマサ だからこそお役に立てる事が沢山有ると思いますので、是非私達に御提案の機会を与えて頂きたいと考えております。
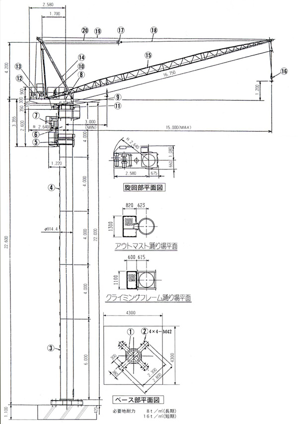
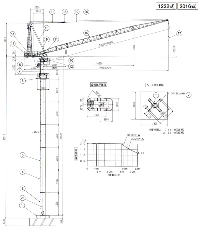
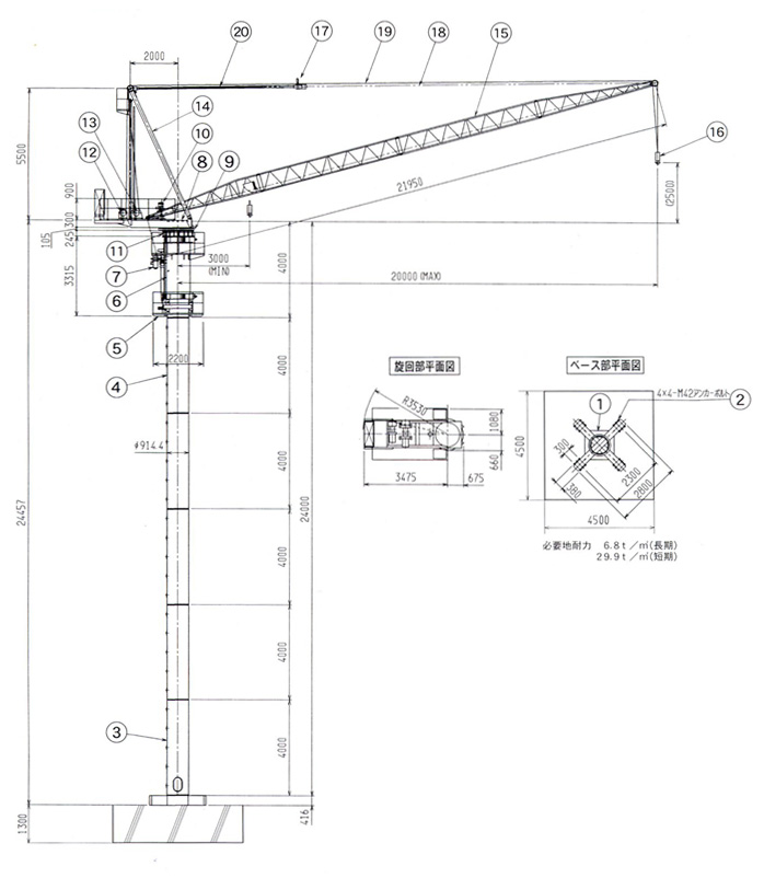
主な仕様
スライドショー
![]() |
![]() |
![]() |
![]() |
トップページ >> 機材レンタル・リース >> タワークレーン
お客様の「困った」を解決します。
単管・筋交パイプ。現場から帰って来たら吹き付け汚れにコンクリート。洗浄しないと使えない・・・
![]()
単管パイプ関連商品
現場から帰って来たクランプ等の小物類。とにかく数が多いから大変・・・
![]()
小物類関連商品
手持ちの材料が少ない。敷地が狭い。設備にお金を掛けたくない。省力化して作業効率を上げたい。
![]()














